一、環保儲罐內的VOCs防爆阻火呼吸閥安裝維護呼吸閥的作用 呼吸閥是一種安全設備,安裝在儲罐頂部,通過控制氣體進出儲罐的速度和量來維持儲罐壓力的穩定。當儲罐內壓力高于設定值時,呼吸閥會打開,排出部分氣體,降低儲罐壓力;當儲罐內壓力低于設定值時,呼吸閥會關閉,阻止外部氣體進入,以保持儲罐壓力在正常范圍內。在現代石油化工、制藥、食品加工等行業中,儲罐作為一種關鍵的物料儲存設備,有著廣泛的應用。然而,儲罐在運行過程中會受到多種因素的影響,如儲罐液位的變化、環境溫度的變化等,這些因素可能會導致儲罐內壓力的變化,進而影響儲罐的安全與穩定運行。為了解決這個問題,呼吸閥被廣泛應用于儲罐中,以維持儲罐壓力的穩定,保護儲罐的安全。本文將就呼吸閥在儲罐上的應用進行詳細的探討。 
二、環保儲罐內的VOCs防爆阻火呼吸閥安裝維護呼吸閥的重要性 -
保護儲罐安全 呼吸閥的存在可以有效地保護儲罐的安全。當儲罐內壓力過高時,呼吸閥可以打開,防止儲罐因壓力過高而受到破壞。同時,當儲罐內壓力過低時,呼吸閥可以關閉,防止外部氣體進入儲罐,避免儲罐出現負壓狀態。 -
減少VOCs氣體揮發 儲罐內的VOCs氣體(如苯、甲苯、二甲苯等)會對環境和人體健康造成危害。呼吸閥的應用可以有效地減少VOCs氣體的揮發。當儲罐內壓力過高時,呼吸閥可以打開,將部分氣體排出,減少VOCs氣體的排放;當儲罐內壓力過低時,呼吸閥可以關閉,防止外部氣體進入儲罐,避免VOCs氣體的揮發。 -
保護員工健康 呼吸閥的應用還可以有效地保護員工的健康。當儲罐內壓力過高時,呼吸閥可以打開,降低儲罐壓力,減少員工接觸有害氣體的機會;當儲罐內壓力過低時,呼吸閥可以關閉,防止外部氣體進入儲罐,避免員工接觸有害氣體。 
一、環保儲罐內的VOCs防爆阻火呼吸閥安裝維護哪些儲罐需要設呼吸閥? 1.《石油化工企業設計防火標準》GB 50160-2008(2018年版) 第6.2.19條 甲B、乙類液體的固定頂罐應設阻火器和呼吸閥;對于采用氮氣或其他氣體氣封的甲B、乙類液體的儲罐還應設置事故泄壓設備。 2.《建筑設計防火規范》GB 50016—2014 (2018年版) 第5.4.15條 設置在建筑內的鍋爐、柴油發電機,其燃料供給管道應符合下列規定: 1 在進入建筑物前和設備間內的管道上均應設置自動和手動切斷閥; 2 儲油間的油箱應密閉且應設置通向室外的通氣管,通氣管應設置帶阻火器的呼吸閥,油箱的下部應設置防止油品流散的設施; 3 燃氣供給管道的敷設應符合現行國家標準《城鎮燃氣設計規范》GB 50028 的規定。 3.《石油庫設計規范》(GB 50074-2014) 第6.4.4條 下列儲罐通向大氣的通氣管管口應裝設呼吸閥: 1、儲存甲B、乙類液體的固定頂儲罐和地上臥式儲罐; 2、儲存甲B類液體的覆土臥式油罐; 3、采用氮氣密封保護系統的儲罐。 第6.4.5條 呼吸閥的排氣壓力應小于儲罐的設計正壓力,呼吸閥的進氣壓力應大于儲罐的設計負壓力。當呼吸閥所處的環境溫度可能小于或等于O℃時,應選用全天候式呼吸閥。 4.《石油天然氣工程設計防火規范》(GB 50183-2004) 第6.4.4條 污油罐及污水沉降罐頂部應設呼吸閥、阻火器及液壓安全閥。 規定污油罐及污水沉降罐頂部應設呼吸閥、液壓安全閥及阻火器的目的是防止罐體因超壓或形成直真空導致破裂,造成罐內介質外泄。同時防止外部火源引爆引燃罐內介質。每個呼吸閥及液壓安全閥均應配置阻火器,它們的性能應分別滿足《石油儲罐呼吸閥》SY/T 0511、《石油儲罐液壓安全閥》SY/T 0525.1、《石油儲罐阻火器》SY/T 0512的要求。 
二、環保儲罐內的VOCs防爆阻火呼吸閥安裝維護關于呼吸閥檢驗、維護保養的要求: 1.《常壓儲罐完整性管理》(GB/T37327-2019) 8.6.1 常壓儲罐用呼吸閥每年至少進行一次檢驗。 8.6.2檢驗前應審查以下資料: a )呼吸閥的產品型號、操作壓力等級; b )制造日期, 產品合格證, 安裝日期, 竣工驗收文件; c )運行周期內的在線檢查記錄; d )歷次定期檢驗報告。 8.6.3檢驗前應明確檢驗項目及合格標準,并取得使用單位認可,使用單位按要求做好準備工作。 8.6.4呼吸閥的檢驗內容包括外觀檢查、開啟壓力、通氣量和泄漏量試驗等。 8.6.5呼吸閥的外觀應無異常銹蝕、泄漏和雜物堵塞。 8.6.6呼吸閥的開啟 壓力、通氣量和泄漏量應滿足設計要求。 2.《危險化學品企業安全風險隱患排查治理導則》應急〔2019〕78號 (四)靜設備的管理 企業應對儲罐呼吸閥(液壓安全閥)、阻火器、泡沫發生器、液位計、通氣管等安全附件按規范設置,并定期檢查或檢測,填寫檢查維護記錄。 3. 《關于開展大型油氣儲存基地安全風險評估工作的通知》 企業應對儲罐呼吸閥(液壓安全閥)、阻火器、泡沫發生器、液位計、通氣管等安全附件按規范設置,并定期檢查或檢測,填寫檢查維護記錄。 4. 油氣儲存企業安全風險評估指南(試行) 4.3 設備安全風險評估 4.3.1 重點評估內容 1)評估儲罐選型是否可以滿足介質危險性的相關要求。 2)采用的儲罐型式是否開展有效的安全可靠性論證。 3)評估儲罐相關安全附件(如安全閥、爆破片、呼吸閥、阻火器、氮封等)的設置符合性、有效性及運行情況。 5.《國家安全監管總局關于進一步加強化學品罐區安全管理的通知》(安監總管三〔2014〕68號) (四)加強化學品罐區設備設施管理。對化學品罐區設備設施要定期檢查檢測,確保儲罐管線閥門、機泵等設備設施完好。加強化學品儲罐腐蝕監控,定期清罐檢查,發現腐蝕減薄及時處理。確保儲罐安全附件和防雷、防靜電、防汛設施及消防系統完好;有氮氣保護設施的儲罐要確保氮封系統完好在用。 6.《SY 5225-2005_石油天然氣鉆井、開發、儲運防火防爆安全生產技術規程》 第7.4.1.1條 儲油罐呼吸閥、阻火器、液壓安全閥的設置應分別按SY/T 0511、SY/T 0512和SY/T 0525.1執行。對安全閥每年至少委托有資格的檢驗機構檢驗、校驗一次。 第7.4.1.2條 呼吸閥、液壓安全閥底座應裝設阻火器,呼吸閥、液壓安全閥冬季每月至少檢查二次,每年進行一次校驗。阻火器每季至少檢查一次。呼吸閥靈活好用。液壓安全閥的油位符合要求,油質合格。阻火器阻火層完好,無油泥堵塞現象。 
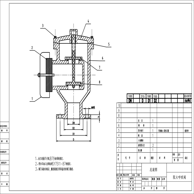
三、環保儲罐內的VOCs防爆阻火呼吸閥安裝維護關于呼吸閥維護保養建議: 1. 呼吸閥常見故障主要有:漏氣、卡死、粘結、堵塞、凍結以及壓力閥和真空閥常開等。 (1) 漏氣:一般是由于銹蝕、硬物劃傷閥與閥盤的接觸面、閥盤或閥座變形以及閥盤導桿傾斜等原因造成。 (2)卡死:多發生在由于呼吸閥安裝不正確或油罐變形導致閥盤導桿歪斜以及閥桿銹蝕的情況下,閥座在沿導桿上下活動中不能到位,將閥盤卡于導桿某一部位。 (3)粘接:是因為油蒸氣、水分與沉積于閥盤、閥座、導桿上的塵土等雜物混合發生化學物理變化,久而久之使閥盤與閥座或導桿粘結在一起。 (4)堵塞:主要是由于機械呼吸閥長期未保養使用,致使塵土、銹渣等雜物沉積于呼吸閥內或呼吸管內,以及蜂或鳥在呼吸閥口筑巢等原因,使呼吸閥堵塞。 (5)呼吸閥凍結:是因為氣溫變化,空氣中的水分在呼吸閥的閥體、閥盤、閥座和導桿等部位凝結,進而結冰,使閥難以開啟。 2.定期檢查內容 (1)檢查是否存在常開、漏氣、卡死、粘結、堵塞、冰凍、生銹等現象; (2)檢查密封襯墊是否漏氣,如有發現應予更換; (3)檢查閥盤能否靈活的轉動有沒有出現卡死的故障; (4)檢查閥體封口網是否出現冰凍、堵塞現象和網上是否附著有灰塵或污垢; (5)檢查閥盤、閥座、導桿、導風彈簧等金屬部件是否出現生銹和積垢現象可以使用煤油清洗。 (6)在儲罐進出物料作業時,檢查呼吸閥運行情況是否正常。 3. 呼吸閥每年應定期校正1次,校正的方法參照SY/T 0511.1-2010《石油儲罐附件 第1部分 呼吸閥》進行。 
三、環保儲罐內的VOCs防爆阻火呼吸閥安裝維護呼吸閥的選用與安裝 -
選用原則 在選擇呼吸閥時,需要考慮到儲罐的實際需求和工況條件。一般來說,選用呼吸閥需要遵循以下幾個原則: (1)適用性原則:需要根據儲罐的類型、儲存介質的性質、使用環境等因素選擇合適的呼吸閥型號和材質。 (2)安全性能原則:需要選擇具有可靠的安全性能的呼吸閥,如防爆、防泄漏等功能。 (3)經濟性原則:需要選擇價格合理、維護方便的呼吸閥。 -
安裝注意事項 在安裝呼吸閥時,需要注意以下幾點: (1)安裝在儲罐頂部位置,確保呼吸閥的安裝位置與垂直線成45°角左右。 (2)在安裝過程中需要確保呼吸閥與法蘭連接處的密封性能良好,防止氣體泄漏。 (3)安裝完成后需要進行測試,確保呼吸閥能夠正常工作。 
四、環保儲罐內的VOCs防爆阻火呼吸閥安裝維護結論 呼吸閥在儲罐上的應用具有重要的作用和意義。通過控制氣體進出儲罐的速度和量來維持儲罐壓力的穩定,可以有效地保護儲罐的安全和員工的健康。同時,減少VOCs氣體的揮發也有助于環境保護。因此,在選擇和安裝呼吸閥時需要遵循一定的選用原則和安裝注意事項。 |